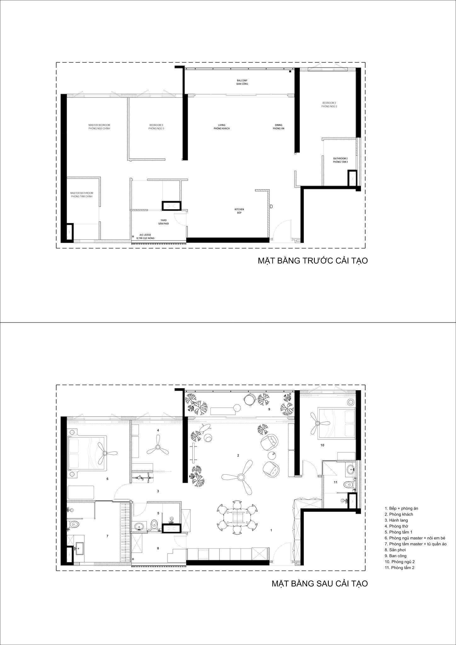
Căn hộ 147 m2 ở quận 7 được thiết kế cho gia đình ba người với tiêu chí đơn giản, rộng thoáng, không quá nhiều đồ đạc trang trí.
Chủ nhà là cặp vợ chồng ngoài 30 tuổi, trước đó đã sở hữu một căn hộ ở tầng thấp hơn trong cùng tòa nhà. Căn hộ cũ quá nhiều đồ liền tường và cố định, không phù hợp với lối sống hàng ngày mà vẫn thiếu chỗ chứa đồ nên gia chủ quyết định thay đổi nơi ở.

Không gian sinh hoạt chung của căn hộ dành ra một khoảng sàn trống lớn để em bé trong nhà có chỗ chơi. Ảnh: Đỗ Sỹ.

Yêu cầu của chủ nhà rất rõ ràng. Họ có nhiều đồ dùng từ dụng cụ làm bếp, bình đựng đồ khô, thiết bị pha chế tới sách vở, quần áo và muốn tất cả những thứ đó nằm gọn trong tủ, hạn chế bụi bẩn và không gây rối mắt, tạo cảm giác bừa bộn. Mọi đồ đạc phải được sắp xếp một cách logic, thẩm mỹ đi kèm công năng sử dụng cùng chất lượng.
Giải pháp của nhóm thiết kế đưa ra là sử dụng vừa đủ nội thất liền tường. Các hệ tủ liền tường như những chiếc hộp vuông vắn, đường nét đơn giản giấu hết vật dụng. Màu sắc hệ tủ giống màu tường để tạo sự liền mạch và cảm giác không gian rộng rãi, thoáng đãng.
Vị trí và kết cấu tủ được tính toán sao cho hợp lý, thuận tiện với sinh hoạt của chủ nhà. Ví dụ, cạnh chậu rửa là máy rửa chén, cạnh máy rửa chén có ngăn chén dĩa dao nĩa, kế đến là bếp nấu, lò nướng và ngăn gia vị. Bên trong tủ chậu rửa có các ngăn nhỏ để xà bông, nước rửa tay, dụng cụ tẩy rửa.
Theo tiêu chí “không thừa không thiếu”, số lượng nội thất liền tường trong nhà được tiết chế, chỉ vừa đủ chứa đồ của gia đình chủ nhà. Ở khu bếp, nhóm thiết kế không bố trí tủ treo vì các tủ xung quanh và ở dưới đã đảm bảo không gian lưu trữ.

Tiết chế nội thất liền tường cũng giúp căn hộ bớt nặng nề và đáp ứng nhu cầu thích thay đổi của người chồng. Trừ những thứ bắt buộc phải đóng cố định liền tường như tủ quần áo, tủ bếp thì các loại giường, tủ trang trí, bàn ghế, tủ đầu giường đều là nội thất rời, linh động, dễ di chuyển. Nhờ đó, gia chủ có thể tự do bày biện làm mới tổ ấm bất cứ khi nào muốn, không bao giờ lo nhàm chán.
Điểm đặc biệt khác của căn hộ là trần thô, để lộ kết cấu. Giải pháp này không phù hợp với tất cả các chủ nhà nhưng giữ nguyên độ cao 2,85 mét của trần (so với 2,6 mét nếu đóng thạch cao), không gian do vậy càng trở nên rộng rãi hơn.
Trần, tường đều được sơn màu trắng, kết hợp với sàn gỗ màu nâu sẫm, dễ hợp với bất cứ kiểu nội thất nào.

Khu vực sinh hoạt chung là nơi gia chủ thích nhất vì vừa có thể đọc sách, uống cafe sáng vừa có thể ngắm con nhỏ chơi đùa với mèo. Ảnh: Đỗ Sỹ.











Minh Trang
Ảnh: Đỗ Sỹ
Thiết kế: Pham Le Trung Hieu x Partners
