Làm trong lĩnh vực kỹ thuật âm thanh biểu diễn, chủ nhân của căn hộ 146 m2 ở Cầu Giấy muốn tổ ấm cũng là nơi thư giãn, tận hưởng cái đẹp.
Căn hộ nằm trong một tòa nhà ở quận Cầu Giấy, được mua lại từ chủ cũ. Căn phòng chưa thực sự phù hợp với yêu cầu của chủ nhân. Một phòng ngủ đặt ở vị trí góc căn hộ làm gián đoạn và chia nhỏ hướng nhìn của căn hộ thành từng khoang độc lập, khiến người sử dụng không thể tận hưởng hết ưu điểm của căn hộ. Không gian sinh hoạt chung vì thế cũng nhỏ hẹp, ít sáng.
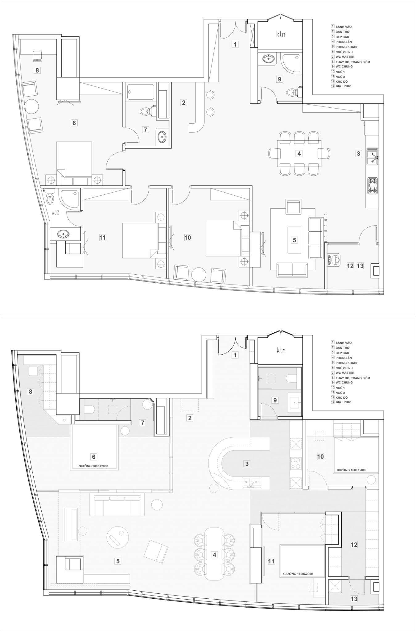
Sau hơn ba tháng làm việc, gia chủ cùng kiến trúc sư thống nhất phân chia lại toàn bộ công năng và không gian để khai thác “view” đáng giá của căn hộ đồng thời thể hiện phong cách sống của một người mang tâm hồn nghệ sĩ.

Một số bức tường trong căn hộ được bỏ đi để mở không gian. Phòng khách và bếp – phòng ăn chiếm một nửa diện tích nhà, được chuyển ra phía mặt kính trải dài. Cột bê tông ở phòng khách vốn bị coi là nhược điểm của căn hộ nay trở thành một tấm gương lớn. Những hình ảnh phản chiếu tạo nên góc nhìn paranoma (toàn cảnh) cho công trình, giúp nó trở nên rộng rãi và sang trọng hơn.
Quầy bar cũng là đảo bếp có thiết kế uốn cong, làm bằng đồng nguyên khối sáng bóng, tạo thành điểm nhấn của căn hộ. Ngoài ra, nó chắn một phần lối vào để dẫn con người dần dần khám phá căn hộ thay vì tiếp xúc trực tiếp ngay lập tức.
Không cần đi đâu xa, gia chủ vẫn có chỗ để vừa nghe nhạc, thưởng rượu vừa chiêm ngưỡng thành phố với góc mở lớn nhất từ hai vách kính vuông góc của tòa nhà.


Quầy bar với thiết kế độc đáo là điểm nhấn của căn hộ. Ảnh: Nguyen Thai Thach.
Ba phòng ngủ cho bốn thành viên gia đình được thay đổi vị trí. Các phòng này đều sử dụng kính mờ, đảm bảo riêng tư nhưng vẫn cho ánh sáng đi vào và đỡ cảm giác xa cách với bên ngoài. Trong phòng ngủ master, nhóm thiết kế bố trí tủ quần áo kết hợp vách ốp gỗ đầu giường với một đường vát góc để tạo không gian liên tục.
Sàn và trần được làm từ gỗ công nghiệp màu gỗ sáng. Thủ pháp giật cấp sàn không chỉ định hình không gian mà còn giải quyết vấn đề về cấp thoát nước và kỹ thuật cho nhà vệ sinh, khu bếp ăn.
Các phòng vệ sinh được chia ra hai khoang ướt và khô. Ở khoang ướt, nhóm thiết kế bố trí các vỉ gỗ trên sàn để giữ ấm chân và chống trơn cho người sử dụng. Khi cần vệ sinh sàn, gia chủ chỉ cần nhấc các vỉ gỗ sau đó lắp lại dễ dàng.

Nhìn chung, nhóm thiết kế lựa chọn thiết kế tối giản cho căn hộ. Đồ đạc trong nhà là sự kết hợp giữa đóng và mở, nặng và nhẹ, đặc và rỗng để đảm bảo cả công năng lẫn thẩm mỹ.









Mặt Bằng căn hộ
Minh Trang
Ảnh: Nguyen Thai Thach
Thiết kế: Dao&Ho Studio
