Ngôi nhà nằm trên khu đất rộng 3.500 m2 ở Cần Giuộc, giám đốc marketing của một tập đoàn lớn cho xây dựng ngôi nhà vườn một tầng.
Chủ nhà cho biết, hàng ngày ảnh phải chịu nhiều áp lực công việc nên muốn có nơi nghỉ ngơi an nhiên, tự tại.
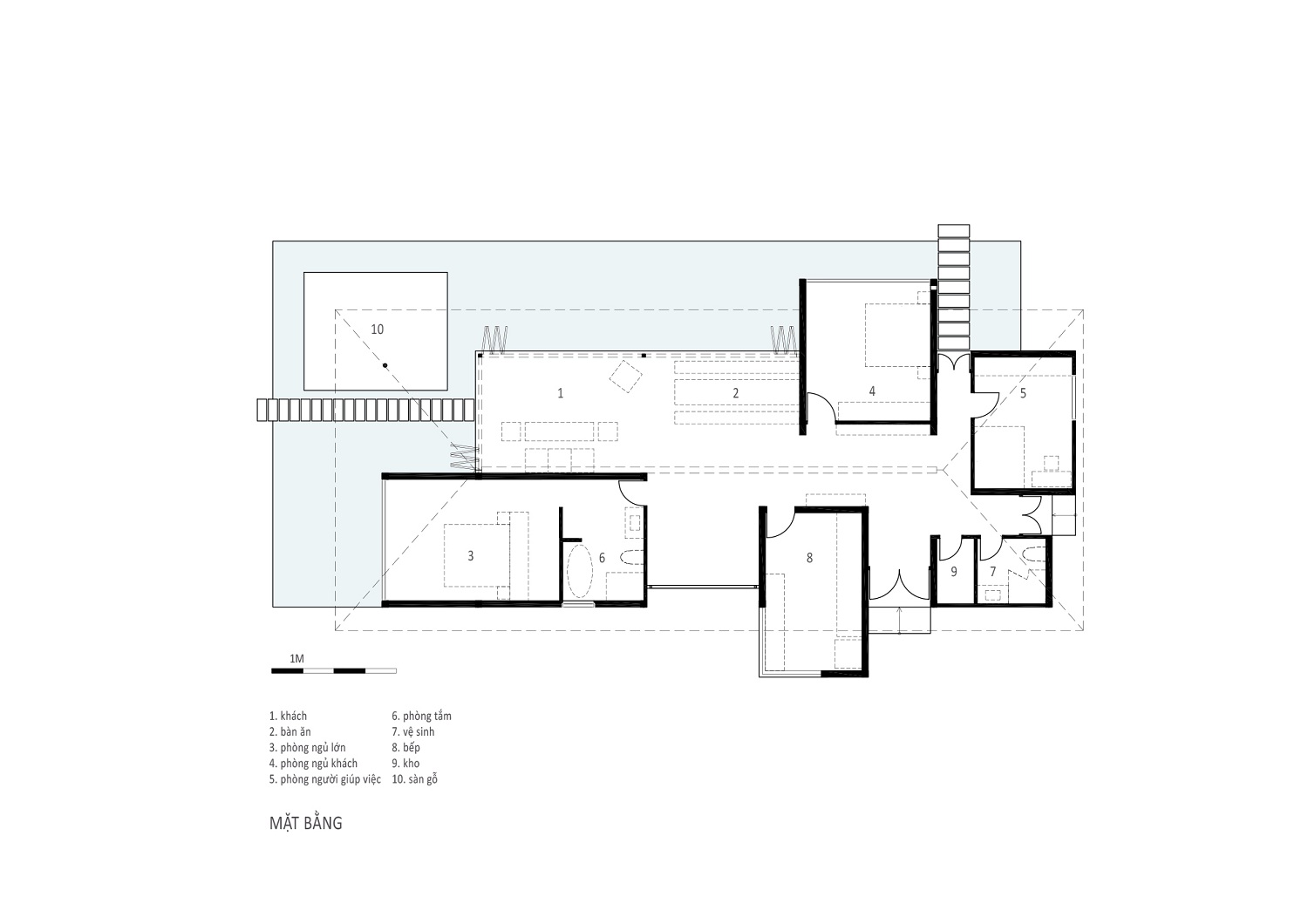
Công trình tổng diện tích sàn 184 m2, được thiết kế gồm năm khối chức năng bố trí tách rời nhau, phân bố tự do bên dưới một mái tranh lớn và quanh một hồ nước diện tích 118 m2.
Bố cục tách khối nhằm mục đích tạo nhiều góc nhìn đa dạng từ trong ra ngoài và ngược lại. Nó cũng giúp mọi không gian đủ sáng tự nhiên và thông thoáng.

Để làm mát cho công trình, hệ mái được làm thành nhiều lớp. Trên cùng là mái tranh, hình thức mái đặc trưng của kiến trúc khu vực Miền Tây Nam Bộ, tạo cảm giác thân thuộc, gần gũi và giúp công trình hòa mình vào thiên nhiên. Tiếp đến là hệ mái tôn chống nước. Dưới mái tôn là khung thép, tạo ra một khoảng không khí cách nhiệt và cuối cùng là trần ốp gỗ.
Hệ mái kết hợp vườn cây, hồ nước tạo gió, bố cục mặt bằng giúp gia chủ không cần dùng quạt

Trên mái, dọc theo suốt chiều dài ngôi nhà còn có khe lấy sáng cho khu vực giữa nhà. Khe sáng này cũng giúp người ở cảm nhận chuyển động của mặt trời theo từng khoảnh khắc trong ngày.
Trong nhà, hệ trần gỗ và sàn nhà được xử lý màu cùng tông với màu tường bê tông vân gỗ được đúc thủ công tại công trường. Sàn nhà không sử dụng gạch lát mà dùng bê tông mài, vừa giúp giảm chi phí xây dựng vừa để tạo cảm giác thư thái dễ chịu khi bước đi.










