Ngôi nhà trên miếng đất 50 m2 nằm trong một con hẻm chỉ rộng 1,2m thiếu nắng, gió giữa trung tâm thành phố Nha Trang.
Chủ nhân căn nhà là một phụ nữ trung niên. Các con đã lớn và ở riêng, thỉnh thoảng mới về nên bà muốn tổ ấm của mình đơn giản mà ấm cúng.
Từ yêu cầu của gia chủ, sau bảy tháng thi công và thiết kế, căn nhà ba tầng thành hình, vừa gắn kết con người với thiên nhiên vừa gợi lại những kỷ niệm cũ của gia đình.

Để giải quyết các bất lợi về ánh sáng và thông gió, các kiến trúc sư dùng “thủ pháp đặc rỗng” trong tạo khối nhà. Bên ngoài, cổng “hoa sắt” cùng giàn leo sắt tạo khối rỗng theo phương dọc. Khối đặc của ngôi nhà cũng được bố trí các bồn trồng cây theo phương ngang. Kết hợp lại, cây cối ở phương ngang lẫn phương dọc trở thành bức rèm xanh cho căn nhà đồng thời giúp mặt tiền công trình thêm nổi bật.
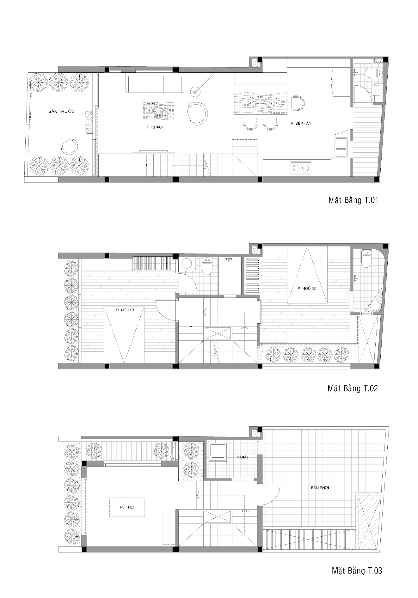
Chiều ngang nhà chỉ bốn mét nên bên trong công trình, nhóm thiết kế sử dụng bố cục đơn giản. Không gian sinh hoạt nằm trước và sau nhà, ở giữa là cầu thang kết hợp thông tầng lấy sáng và lưu thông không khí. Nhờ thủ pháp lệch tầng, mỗi phòng nằm ở một độ cao khác nhau, đem tới nhiều góc nhìn cho gia chủ và đưa nắng, gió vào từng ngóc ngách nhà.
Cầu thang với tay vịn sắt gỗ vừa là trục giao thông vừa kết nối con người với nhau mỗi khi tụ họp. Khi di chuyển, các thành viên có thể nhìn ra khu bếp nơi gia chủ đang nấu nướng hay mảnh sân chỗ trẻ con vui đùa. Hai phòng riêng trên tầng hai kết nối trực tiếp với khu vực cầu thang, qua đó khuyến khích những hoạt động chung và tạo thêm cơ hội để các thành viên nhìn thấy nhau.


Các phòng ngủ tạo hình đơn giản. Để không gian đỡ đơn điệu, phần trần được thiết kế gấp khúc như một cách trang trí. Nhờ các mảng xanh ở mặt tiền và hông nhà, các phòng ngủ đều được tiếp xúc với thiên nhiên.
Với mong muốn gợi lại những ký ức từ ngôi nhà trước kia của gia chủ, kiến trúc sư bố trí những mảng tường gạch trần và tận dụng nội thất cũ như giường, tủ, ghế gỗ. Trong căn nhà mới đầy đủ tiện nghi, gia chủ và các con vẫn cảm nhận được sự quen thuộc và thân thương.










Tổng chi phí hoàn thiện công trình khoảng 800 triệu đồng.
